00件
最近見た物件
00件
検討リスト
ハローハウジング > (マンション(売買))地域から探す > 西宮市 > ローズハイツ西宮宮前町1号棟 > 物件詳細
★浜脇小学校・浜脇中学校区
◆角部屋
◆最上階
◆浴室乾燥機
◆ルーフテラス
◆令和7年1月リフォーム済
西宮市の阪神本線西宮周辺で不動産を探すなら、当社にお任せ下さい。
お問い合わせは0120-17-8605 info@hello-h.comにてお待ちしております。











(※元利均等方式 金利5.00%まで ※返済年数5~50年まで入力できます)
(※ボーナスは年2回で計算しています。1000万円まで入力できます)
(※物件購入時、その他諸費用が発生する場合がございます)
| 所在地 | 兵庫県西宮市宮前町5-30 | ||
|---|---|---|---|
| 交通 | |||
| 間取り/詳細 |
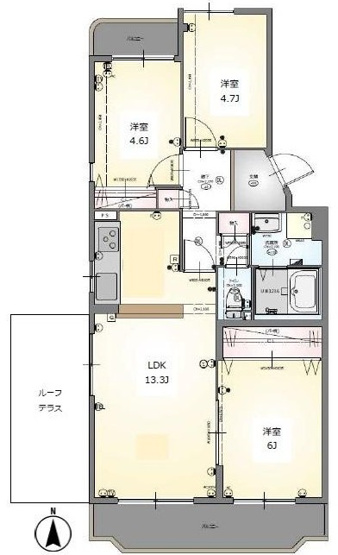
3LDK LDK 13.3帖/洋室 4.6帖/洋室 4.7帖/洋室 6.0帖 |
||
| 専有面積/バルコニー面積 | 66.43㎡/11.28㎡ | ルーフバルコニー面積/テラス面積/専用庭面積 | -/-/- |
| 価格 | 1,850万円 | ||
| 管理費 | 10,100円 | ||
| 修繕積立金 | 9,700円 | 修繕積立基金 | - |
| 権利金 | - | 駐車場/月額料金 | -/- |
| 土地の敷金/保証金 | -/- | 借地料/借地期間 | -/- |
| 土地権利 | 所有権 | 国土法届出要否 | 不要 |
| 用途地域 | - | 地勢 | - |
| 種別/構造 | 中古マンション/鉄筋コンクリート | 向き | - |
| 築年月(築年数) | 1985年 3月 (築40年) | ||
| 所在階/階建 | 4階/4階建 | 棟総戸数/販売戸数 | -/- |
| 管理組合有無 | - | 管理形態 | 管理会社に全部委託 |
| 管理員の勤務形態 | 日勤 | 管理会社 | - |
| 取引態様 | 一般媒介 | 現況 | 空家 |
| 引渡し | 相談 | 建築確認番号 | - |
| 物件番号 | 96320764 | 取引条件の有効期限 | 2026年02月02日 |
| 設備条件 |
|
||
| 備考 |
日常生活で利用頻度の高い水回りだからこそ、使い勝手のいいシステムキッチンを選んでみませんか。角住戸は人通りが少ないのでプライバシーが保たれます。訪問者をカメラで確認できるTVインターホン設置済み。 阪神本線香櫨園近くでお住まい探しをするなら、0120-17-8605、info@hello-h.comよりハローハウジングに是非ご依頼下さい。 |
||
| 取扱会社 |
|
||
| QRコード |
このQRコードを読み取ることで、スマホでも物件情報を確認できます。 |
||
※地図上に表示される物件の位置は付近住所に所在することを表すものであり、実際の物件所在地とは異なる場合がございます。
ローズハイツ西宮宮前町1号棟に関するこだわり条件から探す
西宮市の町名から探す